Længehus
En populær hustype når boligen skal være ekstra stor og rummelig
En populær hustype når boligen skal være ekstra stor og rummelig
Længehuset er den klassiske og billige løsning på en bolig med høj funktionalitet. Den klassiske aflange form passer perfekt til den smalle grund og uden at du behøver at fravælge en integreret dobbelt vognport eller en dejlig overdækket terrasse. Der er plads til dem begge i hver sin ende af huset.
Indendørs er hver kvadratmeter udnyttet effektivt så der er bo-kvalitet for hver en krone helt ned til vor mindste modeller.Der er f.eks. både plads til en voksen- og børneafdeling med hver deres badeværelser. Husene er i samme høje kvalitet som resten af vores husserier. Og arkitekturen? – ja den vælger I selv for huset kan bære det hele! hvad enten I vælger saddeltag med eller uden udhæng, valmtag eller ensidet taghældning.
Alle vores husmodeller kan endvidere tilpasses så boligen kommer til at passe lige din familie.
Hustype: Længehus
Areal: 118 kvm
Antal værelser: 4
Antal badeværelser: 2
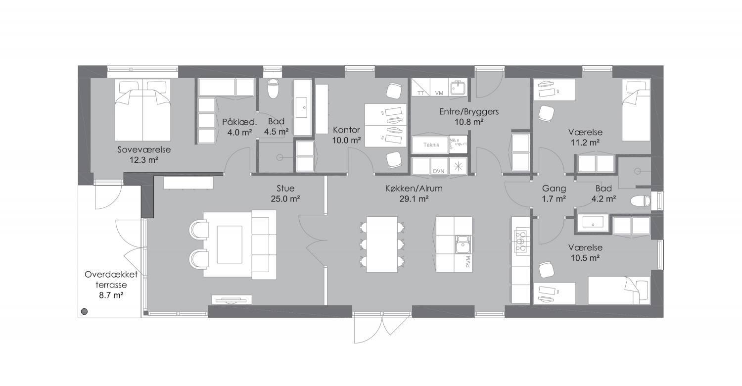
Hustype: Længehus
Areal: 132 kvm
Antal værelser: 6
Antal badeværelser: 2
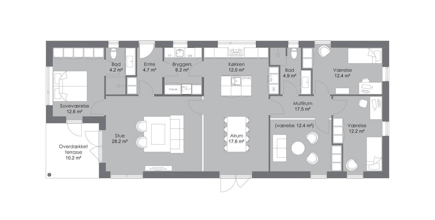
Hustype: Længehus
Areal: 145 kvm
Antal værelser: 6
Antal badeværelser: 2
Hustype: Længehus
Areal: 155 kvm
Antal værelser: 6
Antal badeværelser: 2
Hustype: Længehus
Areal: 170 kvm
Antal værelser: 7
Antal badeværelser: 2
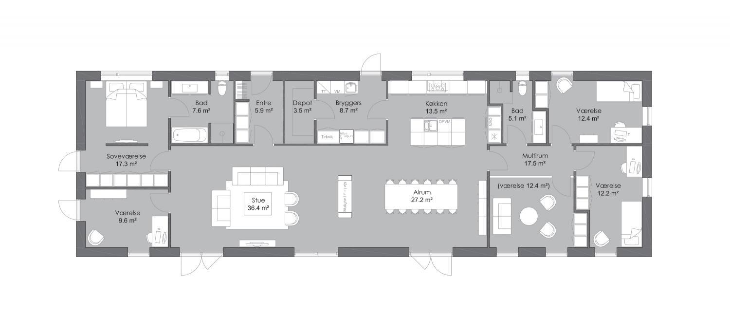
Hustype: Længehus
Areal: 208 kvm
Antal værelser: 6
Antal badeværelser: 2
Vi hjælper dig godt på vej med din boligdrøm. Kontakt en byggerådgiver direkte eller ring til os på 4822 9101