Kampagnehuse

En husserie som er prissat særdeles fordelagtigt, med masser af de detaljer
og byggestil der kendetegner vores huse.

Bernt Nielsen kampagnekoncept

Vores kampagnehuse er en husserie, som vi har valgt at prissætte særdeles fordelagtigt, men stadigvæk med mange af de detaljer og den byggestil, som kendetegner vores huse.

Planløsningerne i kampagnemodellerne er faste og kan således ikke ændres. Der kan tilkøbes lofter til kip, vognport samt indvendigt udstyr og individuelt materialevalg. Den synergi og besparelse, vi opnår ved ikke at skulle ændre tegninger, har vi valgt at lade vores kunder komme til gode, og det afspejler sig i prisen.

Vores kampagnehuse følger tidens trend. Der medfølger en lang række elementer som standard. Elementer som man andre steder betaler ekstra for.


Som nogle af de væsentligste kan nævnes bl.a:

  • Sadeltag med murede gavle
  • Muret gesims
  • Stor arkitekttagrende
  • Ventilationsanlæg med produktion af varmt vand

Samtidig med at det installerede ventilationsanlæg ventilerer huset, genbruger anlægget den varme luft til at opvarme vandet med.

Med vores kampagnekoncept tilbyder vi vores kunder nye vedligeholdelsesfri og ikke mindst energivenlige huse til særdeles fordelagtige priser.

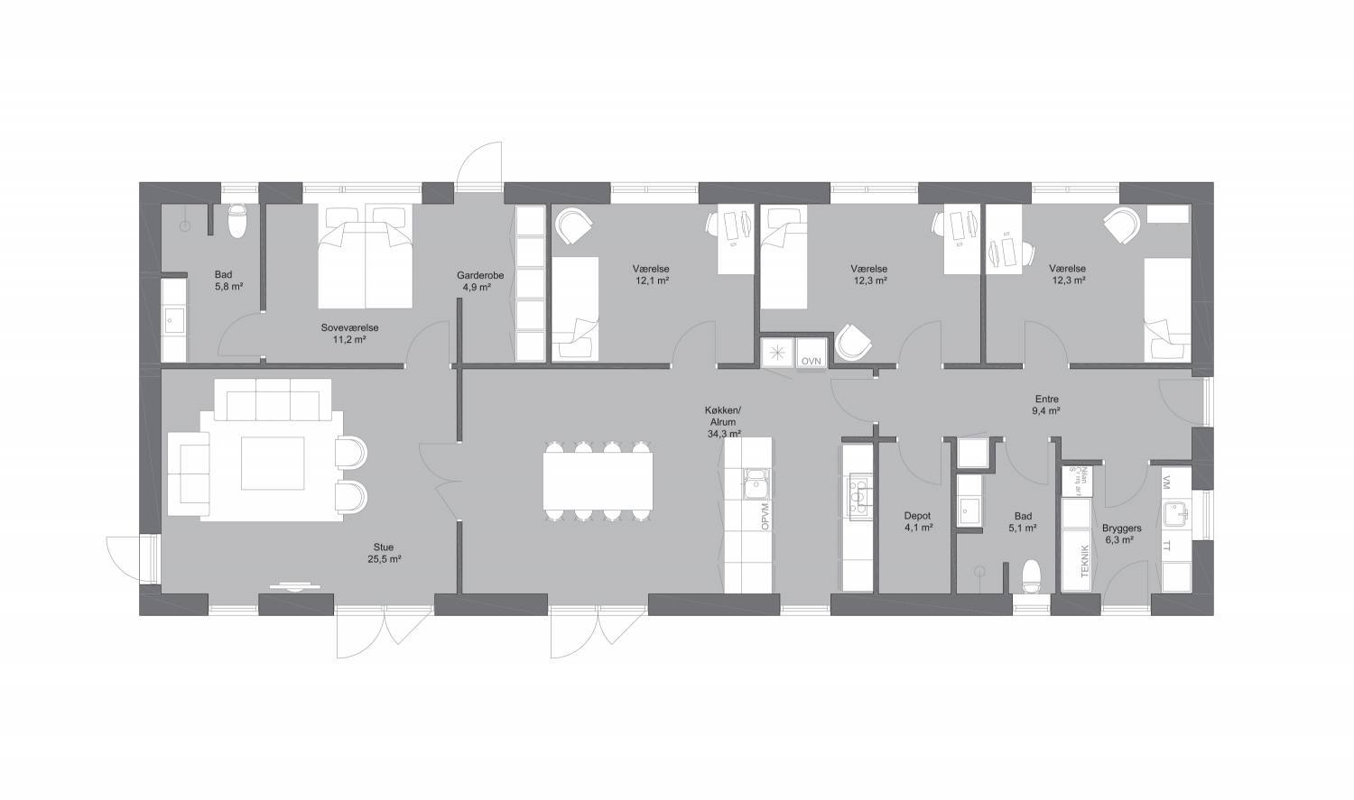
Plantegninger længehus

137 kvm

5 værelser / 2 badeværelser

Enkelt og funktionelt hus uden spildplads. Opdelt børne- og forældreafdeling med egne badeværelser. Lyst og åbent køkken/alrum/stue.

151 kvm

5 værelser / 2 badeværelser

Stor forældreafdeling med garderobe og eget bad. Børneafdeling med eget bad og aktivitetsrum, der kan indrettes til et ekstra værelse. Gennemlyst køkken/alrum.

151 kvm

4 værelser / 2 badeværelser

Lyst og åbent køkken/alrum/stue orienteret ud fra gavlen – for at udnytte den smalle grund. Store og reelle værelser. Forældreafdeling med garderobe og eget bad.

169 kvm

6 værelser / 2 badeværelser

Stramt udnyttet længehus til den store familie. Depotrum tæt på køkkenet. Tre store og reelle værelser i egen afdeling. Mulighed for opdeling mellem køkken/alrum og stue.

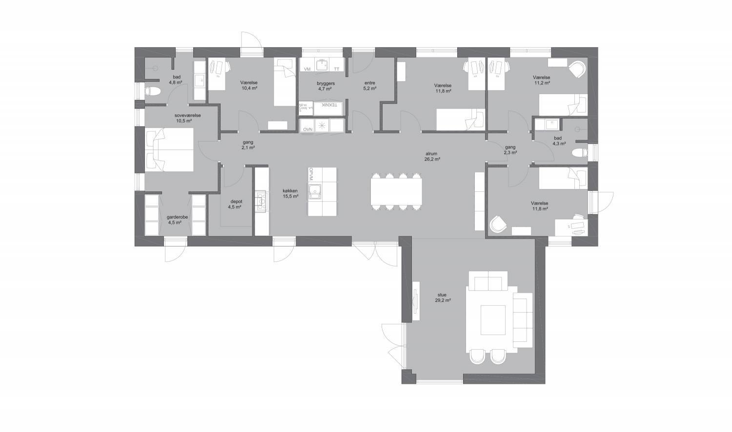
Plantegninger vinkelhus

149 kvm

6 værelser / 2 badeværelser

Effektivt udnyttet hus med plads til familien. Stor entré med adgang til separat børneafdeling. Rummeligt soveværelse med garderobe og eget bad.

159 kvm

6 værelser / 2 badeværelser

Rummeligt vinkelhus med stort køkken/alrum i direkte forbindelse stue. Opholdsafdeling orienteret mod lukket krog i vinklen. Stor og åben entré/bryggers

171 kvm

6 værelser / 2 badeværelser

Gennemlyst køkken/alrum med direkte adgang til depot. Stor og lys stue i direkte forbindelse med køkken/alrum. Soveværelse med separat garderobe og eget bad.

187 kvm

7 værelser / 2 badeværelser

Stort og meget veludnyttet vinkelhus til den store familie. Stort depot i forbindelse med køkken. Store og reelle børneværelser i egen afdeling. Ingen spildplads. Mulighed for aflukket stue.

Bliv ringet op af en medarbejder

6 + 1 = ?

Kontakt en af vores dygtige
medarbejdere

Vi hjælper dig godt på vej med din boligdrøm. Kontakt en byggerådgiver direkte eller ring til os på 4822 9101

© Copyright – Bernt Nielsen Huse A/S